MASTERPLAN SCHALIKEN HERENTALS

Herentals maakt zich op voor een ingrijpende metamorfose in het stadscentrum. Met een ambitieus project bouwt het stadsbestuur aan een nieuwe, multifunctionele stadsfeestzaal met een ondergrondse parking van zo’n 250 plaatsen en geeft het het stadspark Van Hilst een flinke uitbreiding. De combinatie van beleving, duurzame mobiliteit en groen vormt de kern van dit toekomstgericht stadsontwikkelingsplan.

De nieuwe stadsfeestzaal moet een multifunctioneel gebouw worden, dat inzet op flexibiliteit, toegankelijkheid en breed gebruik. Er komt een grote eventzaal voor 1000 personen staand, een polyvalente zaal met 350 zitplaatsen én ruimte voor een open jeugdhuis. De feestzaal wordt zo een echte trekpleister voor jong en oud, voor fuiven en feesten, voor congressen en eetfestijnen. Deze invulling is het resultaat van een intens participatietraject met inwoners, verenigingen en gebruikers. Hun wensen werden gebundeld in een programma van eisen dat de basis vormde voor het stedenbouwkundig onderzoek.

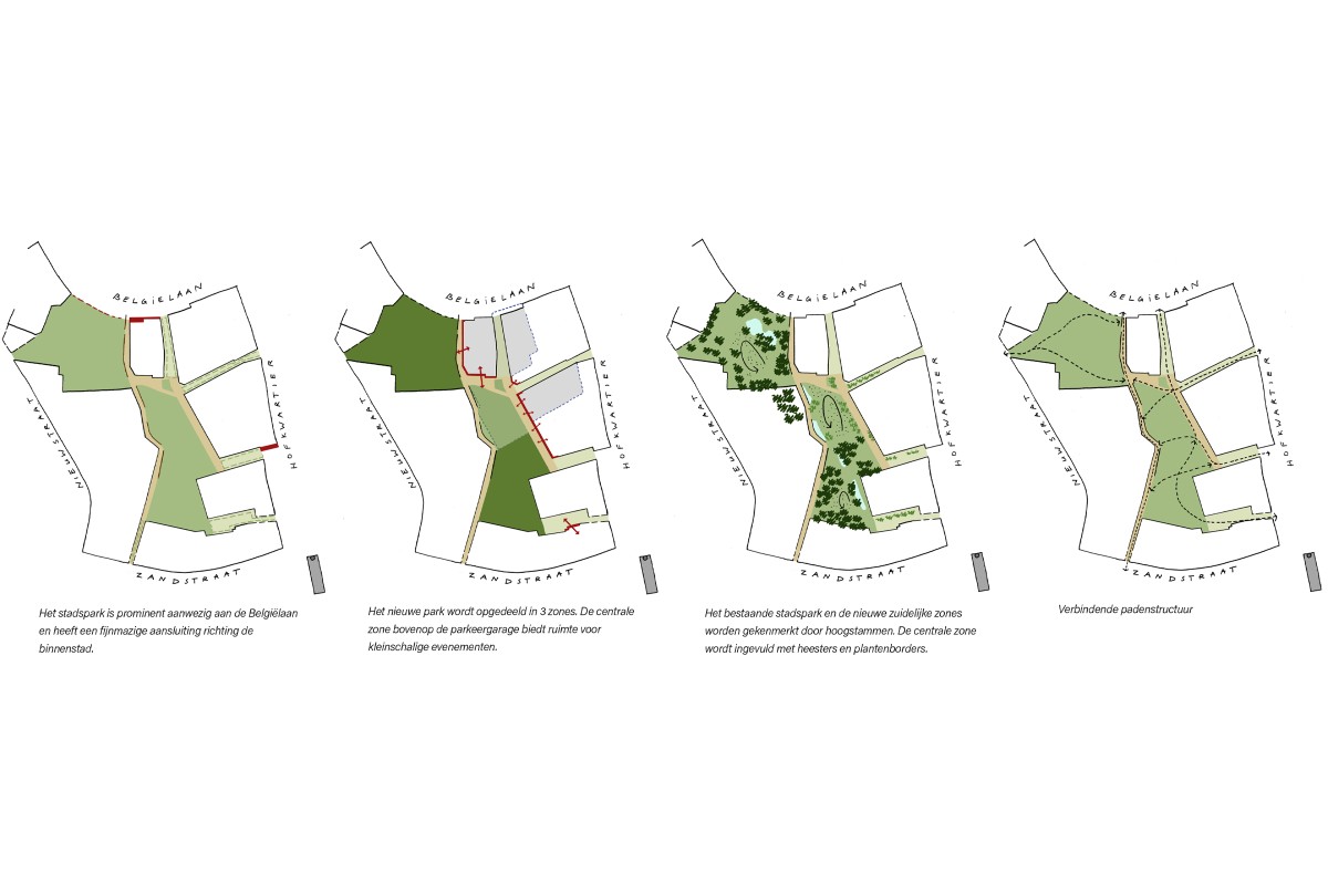
Door compact te bouwen en het parkeren volledig ondergronds te organiseren, ontstaat bovengronds ruimte voor een verdubbeling van de oppervlakte van het bestaande park. Het stadspark zal zich daardoor uitstrekken tot aan cultuurcentrum ’t Schaliken en sluit daarmee naadloos aan op andere publieke functies.

Met de bouw van de ondergrondse parking kan ook de Grote Markt achteraf deels parkeervrij worden gemaakt, waardoor ze haar rol als levendig stadsplein kan herwinnen. Wat vandaag nog een versnipperd en deels bebouwd binnengebied is tussen het park Van Hilst, de Grote Markt en de Zandstraat, wordt de komende jaren getransformeerd tot een autovrije oase van rust, ontmoeting en natuur. 

Het vernieuwde stadspark wordt ingericht met aandacht voor biodiversiteit, kindvriendelijkheid en veilige toegankelijkheid. Er komen nieuwe hoogstammige bomen, waterdoorlatende zones, natuurlijke speelelementen en aangename zitplekken. Het park zal ook ruimte bieden aan kleinschalige evenementen, die kunnen aansluiten op de werking van de nieuwe feestzaal.

Masterplan Schaliken Herentals

LOCATIE Binnengebied Schaliken
Herentals

BOUWHEER Stad Herentals

SAMENWERKING ism Palmbout Urban Landscapes

Wie houdt nu niet van cookies